Presentation Inkvartering Historia Reserverignar Äkäslompo/Ylläs info
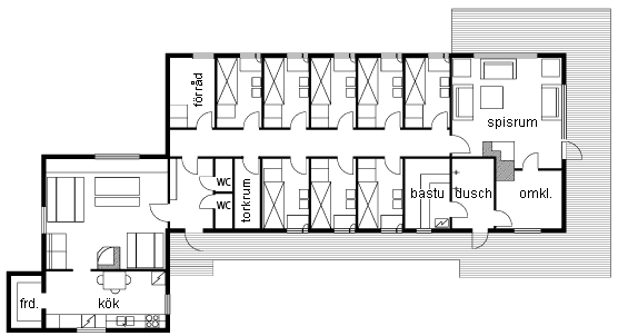
  • 16 bäddplatser, 8st 2 personers rum
  • elbastu
  • 3 toaletter
  • 2 allrum/spisrum
  • torkrum
  • tvättmaskin
  • diskmaskin
  • vallningsstuga
  • Vy från gården   spisrum 1 spisrum 2 rum för 2 personer
     
    Terrass   Kök Bastu  

     

     

    Kruununmaja Fastighets Ab - Kronoby Fjällstuga | Kesänkijärventie 3 | 95970 Äkäslompolo
    Retur till startsidan